Planowanie kuchni to coś więcej niż tylko wybór frontów i kolorów. To przede wszystkim stworzenie przestrzeni, która będzie funkcjonalna, ergonomiczna i komfortowa w codziennym użytkowaniu. Właściwa wysokość szafek kuchennych ma kluczowe znaczenie dla Twojego komfortu, zdrowia kręgosłupa i ogólnej satysfakcji z gotowania. W tym artykule, jako Marek Jasiński, podzielę się z Tobą moją wiedzą i doświadczeniem, abyś mógł zaprojektować kuchnię idealnie dopasowaną do Twoich potrzeb.
Optymalna wysokość szafek w kuchni klucz do ergonomii i komfortu gotowania
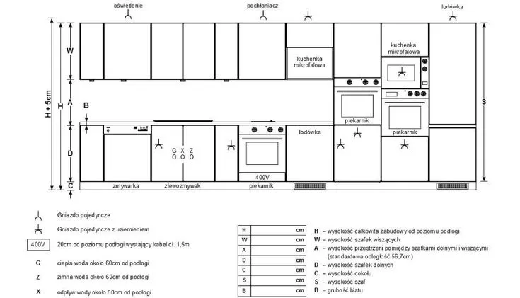
- Standardowa wysokość blatu roboczego waha się między 85 a 90 cm od podłogi.
- Idealna wysokość blatu to około 10-15 cm poniżej zgiętego łokcia użytkownika.
- Zalecana odległość między blatem a szafkami wiszącymi wynosi 55-60 cm.
- Głębokość szafek wiszących to zazwyczaj 30-35 cm, aby nie utrudniać pracy.
- Wysokość montażu okapu zależy od typu płyty: 55-65 cm dla elektrycznej/indukcyjnej, 65-75 cm dla gazowej.
- Środek piekarnika w zabudowie typu "słupek" powinien znajdować się na wysokości 110-120 cm.
Koniec z bólem pleców: jak ergonomia w kuchni wpływa na Twoje zdrowie i komfort
Z mojego doświadczenia wiem, że kuchnia to jedno z najintensywniej eksploatowanych pomieszczeń w domu. Spędzamy w niej mnóstwo czasu na przygotowywaniu posiłków, zmywaniu czy sprzątaniu. Jeśli meble nie są odpowiednio dopasowane do naszego wzrostu i sposobu pracy, szybko pojawią się problemy. Często widzę, jak klienci skarżą się na ból pleców, karku czy nadgarstków, a przyczyną jest zazwyczaj niewłaściwa wysokość blatu roboczego lub zbyt nisko zawieszone szafki. Prawidłowe wymiary zapobiegają niepotrzebnemu schylaniu się, wyciąganiu rąk czy garbieniu, co bezpośrednio przekłada się na komfort i zdrowie. Ergonomiczna kuchnia to inwestycja w Twoje dobre samopoczucie na lata.
Standardy a indywidualne potrzeby: kiedy trzymać się norm, a kiedy je łamać?
Zawsze powtarzam, że standardy są świetnym punktem wyjścia, ale nie powinny być sztywną regułą. Producenci mebli kuchennych oferują pewne uniwersalne wymiary, które sprawdzą się u większości osób o przeciętnym wzroście. Jednakże, jeśli jesteś osobą bardzo wysoką lub niską, albo masz specyficzne potrzeby (np. problemy z kręgosłupem), kluczowe jest indywidualne dopasowanie. Moim zadaniem jako eksperta jest pomóc Ci znaleźć złoty środek wykorzystać sprawdzone normy, ale jednocześnie spersonalizować projekt tak, aby kuchnia była idealnie „skrojona” pod Ciebie i Twoich domowników. Pamiętaj, że to Ty masz czuć się w niej komfortowo, a nie standardy mają Cię ograniczać.

Prawidłowa wysokość szafek dolnych i blatu roboczego
Ile wynosi standardowa wysokość szafek stojących w polskich kuchniach?
W większości polskich kuchni standardowa wysokość korpusu szafki dolnej wynosi około 72 cm. Do tego dochodzą jednak inne elementy, które składają się na finalną wysokość blatu roboczego. Musimy doliczyć cokół, czyli listwę maskującą nóżki szafek, która zazwyczaj ma od 10 do 15 cm wysokości. Na koniec, na szafkach montowany jest blat, którego grubość waha się od 2 do 4 cm. Sumując te elementy, otrzymujemy finalną wysokość blatu roboczego w przedziale 85-90 cm od podłogi. To jest właśnie ten „standard”, o którym często słyszymy.
Blat roboczy: na jakiej wysokości powinien się znaleźć, by praca była przyjemnością?
Jak wspomniałem, standardowa wysokość blatu roboczego 85-90 cm jest optymalna dla osób o wzroście w przedziale 165-175 cm. Dla nich praca przy takim blacie będzie komfortowa, bez nadmiernego schylania się czy wyciągania rąk. Jednakże, jeśli odbiegasz od tej średniej, warto zastanowić się nad indywidualnym dopasowaniem. Wysokość blatu ma fundamentalne znaczenie dla Twojej postawy podczas krojenia, ugniatania czy innych czynności, które wykonujesz na co dzień. Zbyt niski blat spowoduje garbienie się, zbyt wysoki unoszenie ramion i szybkie zmęczenie.
Prosty test łokcia: jak idealnie dopasować wysokość blatu do swojego wzrostu?
Aby idealnie dopasować wysokość blatu do swojego wzrostu, polecam prosty „test łokcia”. Stań prosto, zegnij rękę w łokciu pod kątem 90 stopni i zmierz odległość od podłogi do zgiętego łokcia. Idealna wysokość blatu powinna znajdować się 10-15 cm poniżej tego punktu. Dzięki temu będziesz pracować w naturalnej pozycji, bez obciążania kręgosłupa. Poniżej przedstawiam ogólne zalecenia:
- Dla osób o wzroście do 170 cm: zalecana wysokość blatu to 85-90 cm.
- Dla osób o wzroście 170-185 cm: zalecana wysokość blatu to 90-105 cm.
- Dla osób o wzroście powyżej 185 cm: blat powinien znajdować się na wysokości ponad 105 cm.
Kluczowa przestrzeń: odległość między blatem a szafkami wiszącymi
Złoty standard 55-60 cm: dlaczego ta wartość sprawdza się w większości przypadków?
Odległość między blatem roboczym a dolną krawędzią szafek wiszących to kolejny kluczowy wymiar. „Złoty standard” wynoszący 55-60 cm sprawdza się w większości kuchni z kilku powodów. Po pierwsze, zapewnia wystarczająco dużo miejsca na swobodne korzystanie z małego AGD, takiego jak ekspres do kawy, czajnik elektryczny czy toster. Po drugie, pozwala na komfortową pracę bez obawy o uderzenie głową w szafki, co jest częstym problemem przy zbyt niskim montażu. Po trzecie, ta odległość umożliwia łatwy dostęp do zawartości szafek wiszących dla większości użytkowników.
Kiedy mniej znaczy więcej? Minimalna i maksymalna bezpieczna odległość
Chociaż 55-60 cm to optymalny zakres, istnieją sytuacje, w których możemy nieco od niego odbiec. Minimalna bezpieczna odległość to 45 cm poniżej tej wartości może brakować miejsca na sprzęty AGD, a praca stanie się mniej komfortowa. Z kolei maksymalna odległość, dla zachowania funkcjonalności, nie powinna przekraczać 70 cm. Przy większym odstępie dostęp do wyższych półek w szafkach wiszących staje się utrudniony, zwłaszcza dla osób niższych. Ważne jest, aby znaleźć balans między przestrzenią roboczą a dostępnością.
Niski czy wysoki wzrost? Jak dostosować odległość nad blatem do domowników
Podobnie jak w przypadku wysokości blatu, odległość między blatem a szafkami wiszącymi również warto dostosować do wzrostu użytkowników. Osoby niższe, mierzące poniżej 165 cm, mogą rozważyć montaż szafek w niższym zakresie, np. 50-54 cm od blatu. Ułatwi im to dostęp do zawartości szafek bez konieczności stawania na palcach. Z kolei osoby wyższe mogą pozwolić sobie na większy odstęp, nawet 60-65 cm, co zapewni im jeszcze więcej przestrzeni roboczej i swobody ruchów, zwłaszcza jeśli często korzystają z wysokich garnków czy patelni.

Szafki wiszące bez tajemnic: wymiary i montaż
Głębokość ma znaczenie: dlaczego szafki górne są płytsze od dolnych?
Standardowa głębokość szafek wiszących to zazwyczaj 30-35 cm. Jest to znacznie mniej niż w przypadku szafek dolnych, które mają około 50-60 cm głębokości. Dlaczego taka różnica? Głównym powodem jest ergonomia i bezpieczeństwo. Płytsze szafki wiszące zapobiegają uderzaniu głową podczas pracy przy blacie roboczym. Dodatkowo, ułatwiają dostęp do przechowywanych w nich przedmiotów, ponieważ nie musimy sięgać głęboko, ryzykując, że coś spadnie. Dzięki temu kuchnia staje się bezpieczniejsza i bardziej funkcjonalna.
Od niskich po zabudowę pod sufit: jaką wysokość szafek wiszących wybrać?
Wysokość szafek wiszących jest bardzo zróżnicowana i zależy od systemu meblowego oraz wysokości pomieszczenia. Na rynku znajdziemy szafki o wysokości od 40 cm do ponad 100 cm. Coraz popularniejsza staje się zabudowa aż po sam sufit. Ma ona wiele zalet: maksymalizuje przestrzeń do przechowywania, eliminuje problem kurzu zbierającego się na górze szafek i tworzy spójną, elegancką estetykę. Warto jednak pamiętać, że do najwyższych półek dostęp będzie wymagał użycia drabinki lub schodków, co nie dla każdego jest wygodne.
Jak zapewnić sobie wygodny dostęp do najwyższych półek?
Jeśli zdecydujesz się na wysoką zabudowę lub po prostu masz wysokie szafki wiszące, warto pomyśleć o rozwiązaniach ułatwiających dostęp do najwyższych półek. Oto kilka propozycji, które często polecam moim klientom:
- Składane schodki lub taborety: To proste i praktyczne rozwiązanie, które można schować, gdy nie jest potrzebne.
- Drabinki kuchenne: Niektóre projekty kuchni przewidują estetyczne drabinki, które mogą być elementem dekoracyjnym i jednocześnie bardzo funkcjonalnym.
- Systemy cargo lub windy: Specjalne mechanizmy pozwalające na opuszczanie całych półek lub koszy z zawartością na niższy poziom. To bardzo wygodne, choć droższe rozwiązanie.
- Przechowywanie rzadziej używanych przedmiotów: Na najwyższych półkach warto umieścić rzeczy, których używasz sporadycznie, np. świąteczne naczynia czy zapasowe akcesoria.
Kwestie specjalne: okap i wysoka zabudowa
Okap kuchenny: jak jego typ i wysokość montażu wpływają na układ szafek?
Okap kuchenny to nie tylko element wentylacji, ale także ważny czynnik wpływający na układ szafek wiszących. Jego wysokość montażu jest kluczowa zarówno dla efektywności, jak i bezpieczeństwa. Minimalna wysokość montażu okapu nad płytą grzewczą jest różna w zależności od jej typu:
- Dla płyty elektrycznej lub indukcyjnej: okap powinien być zamontowany na wysokości 55-65 cm od płyty.
- Dla płyty gazowej: ze względów bezpieczeństwa, odległość ta powinna wynosić 65-75 cm.
Zawsze, ale to zawsze, należy sprawdzić zalecenia producenta okapu, ponieważ mogą się one różnić. Ważne jest również, aby dolna krawędź szafek wiszących znajdujących się obok okapu była z nim zlicowana. Zapewni to spójność wizualną i estetyczny wygląd całej zabudowy.
Piekarnik na poziomie wzroku: ergonomia w zabudowie typu "słupek"
Montaż piekarnika w zabudowie typu „słupek” to rozwiązanie, które zyskuje na popularności ze względu na swoją ergonomię. Umieszczenie piekarnika na wysokości wzroku eliminuje konieczność schylania się, co jest szczególnie doceniane przez osoby starsze lub mające problemy z kręgosłupem. Optymalna wysokość montażu to taka, gdzie środek piekarnika znajduje się na wysokości około 110-120 cm od podłogi. Dzięki temu wygodnie wyjmiesz gorące potrawy i będziesz mieć doskonały wgląd w proces pieczenia bez nadmiernego wysiłku.
Czy gniazdka elektryczne nad blatem mają wpływ na wysokość szafek?
Tak, rozmieszczenie gniazdek elektrycznych nad blatem ma bezpośredni wpływ na planowanie szafek wiszących. Zazwyczaj gniazdka montuje się 10-20 cm nad blatem roboczym, aby były łatwo dostępne i wygodne w użytkowaniu. Projektując kuchnię, musisz upewnić się, że szafki wiszące nie będą ich zasłaniać. To często pomijany, ale bardzo ważny detal. Warto wcześniej zaplanować, gdzie będą stały sprzęty AGD wymagające zasilania, aby gniazdka znalazły się w odpowiednich miejscach i były zawsze pod ręką, a jednocześnie nie kolidowały z dolną krawędzią szafek.Stwórz kuchnię idealnie dopasowaną do Ciebie
Checklista kluczowych wymiarów: zapisz i zastosuj przed montażem
Aby upewnić się, że Twoja kuchnia będzie idealnie dopasowana, przygotowałem krótką checklistę najważniejszych wymiarów i zasad, które warto zapisać i mieć pod ręką przed montażem:
- Wysokość blatu roboczego: Dopasuj do wzrostu (test łokcia), standard to 85-90 cm.
- Odległość między blatem a szafkami wiszącymi: Optymalnie 55-60 cm, minimum 45 cm.
- Głębokość szafek wiszących: Standardowo 30-35 cm.
- Wysokość montażu okapu: 55-65 cm (indukcja/elektryka), 65-75 cm (gaz), zawsze sprawdź producenta.
- Wysokość piekarnika w słupku: Środek na 110-120 cm.
- Rozmieszczenie gniazdek: 10-20 cm nad blatem, niezabudowane.
Przeczytaj również: Ile kosztuje zrobienie kuchni? Pełny kosztorys od 20 000 zł!
Najczęstsze błędy przy montażu szafek i jak ich uniknąć
W mojej pracy często spotykam się z kilkoma powtarzającymi się błędami, których łatwo można uniknąć, mając odpowiednią wiedzę:
- Ignorowanie wzrostu użytkowników: Projektowanie kuchni tylko na podstawie standardów, bez uwzględnienia indywidualnych potrzeb domowników. Rozwiązanie: Zawsze wykonaj „test łokcia” i dostosuj wysokość blatu oraz szafek wiszących.
- Brak miejsca na małe AGD: Zbyt mała odległość między blatem a szafkami wiszącymi, co uniemożliwia swobodne korzystanie z ekspresu czy czajnika. Rozwiązanie: Upewnij się, że masz co najmniej 55 cm odstępu, a najlepiej sprawdź wymiary swoich sprzętów.
- Zła wysokość montażu okapu: Nieprawidłowy montaż okapu, który jest albo nieskuteczny, albo stanowi zagrożenie (szczególnie przy płycie gazowej). Rozwiązanie: Zawsze przestrzegaj zaleceń producenta i pamiętaj o różnicy dla płyt elektrycznych i gazowych.
- Zasłonięte gniazdka elektryczne: Gniazdka nad blatem są zasłonięte przez szafki wiszące lub ich dolne krawędzie. Rozwiązanie: Dokładnie zaplanuj rozmieszczenie gniazdek i upewnij się, że są one łatwo dostępne i nie kolidują z meblami.
- Niewystarczająca głębokość szafek wiszących: Czasem klienci chcą głębsze szafki wiszące, by zyskać więcej miejsca, ale zapominają o komforcie. Rozwiązanie: Trzymaj się standardowej głębokości 30-35 cm, aby uniknąć uderzania głową i zachować ergonomię.
